Warszawa, Ursynów, Kabaty, Stefana Dembego

Mieszkanie na sprzedaż

2 pokoje 3 piętro 49,80 m2 18 835,34 zł/m2

938 000 zł

nowa oferta

Opis nieruchomości

Na sprzedaż funkcjonalne i zadbane mieszkanie o powierzchni 49,8 m², położone przy ul. Dembego 10 na kameralnym osiedlu Nordic Star na warszawskich Kabatach.

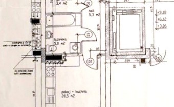
 Układ mieszkania

Mieszkanie jest bardzo dobrze zaprojektowane i składa się z:

  • przestronnego salonu z aneksem kuchennym (20,5 m²)
  • ustawnej sypialni (15,6 m²)
  • łazienki (5 m²)
  • holu (5,3 m²)
  • dodatkowo garderoby (3,4 m²)

Z salonu wyjście na duży balkon (ponad 5 m²) – idealny na poranną kawę lub relaks po pracy.

Standard wykończenia

Mieszkanie przeszło generalny remont w 2020 roku, wykonany „pod siebie”, z dbałością o jakość i detale:

  • eleganckie szklane ramki włączników i gniazdek
  • armatura łazienkowa Omnires
  • zabudowa łazienkowa na wymiar
  • kabina prysznicowa z szybą Radaway
  • stylowe płytki kuchenne oraz oświetlenie Italux

W lutym 2026 r. mieszkanie zostało odświeżone – odmalowane wybrane pomieszczenia oraz wymienione silikony w łazience.

Stan techniczny

  • mieszkanie gotowe do wprowadzenia
  • sprawne sprzęty AGD
  • instalacje elektryczna i hydrauliczna w bardzo dobrym stanie

Dodatkowe atuty

  • szerokie miejsce postojowe w garażu podziemnym – tuż przy wejściu do klatki
  • spokojne, zielone osiedle z dobrą komunikacją i pełną infrastrukturą

 Miejsce garażowe dodatkowo płatne: 50 000 zł

Nota prawna

Opis oferty zawarty na stronie internetowej sporządzany jest na podstawie oględzin nieruchomości oraz informacji uzyskanych od właściciela, może podlegać aktualizacji i nie stanowi oferty określonej w art. 66 i następnych K.C.

Szczegóły

Symbol oferty VES-MS-4638
Powierzchnia 49,80 m²
Powierzchnia użytkowa 49,80 m²
Powierzchnia balkonów/tarasów 6,00 m²
Liczba pokoi 2
Piętro 3
Rodzaj budynku apartamentowiec
Liczba pięter w budynku 5
Garaż garaż pod budynkiem
Stan lokalu bardzo dobry
Mies. czynsz admin. 946 PLN
Okna PCV
Balkon duży
Liczba balkonów 1
Rok budowy 2003
Winda tak

Pomieszczenia

Wysokość pomieszczeń 2,70 m
Powierzchnia pokoi 21,16 m2
Podłogi pokoi panele
Typ kuchni aneks kuchenny
Rodzaj kuchni aneks kuchenny - połączony z salonem
Podłoga kuchni terakota
Typ łazienki razem z wc
Liczba łazienek 1
Powierzchnia łazienki 5 m2
Liczba przedpokoi 1
Powierzchnia przedpokoi 5 m2
Podłoga przedpokoi panele

Podobne oferty

Mieszkanie na sprzedaż - Warszawa, Śródmieście, Wilanowska
mieszkanie na sprzedaż - Warszawa, Śródmieście, Wilanowska

VES-MS-4639

Warszawa, Śródmieście,…
mieszkanie na sprzedaż

2 pokoje 44,17 m²

920 000
20 828,62 zł/m2
oferta na wyłączność
Dodaj
do notatnika
Mieszkanie na sprzedaż - Warszawa, Bemowo, Górce
mieszkanie na sprzedaż - Warszawa, Bemowo, Górce

VES-MS-4636

Warszawa, Bemowo, Górce
mieszkanie na sprzedaż

2 pokoje 40,00 m²

675 000
16 875,00 zł/m2
nowa oferta
Dodaj
do notatnika
Mieszkanie na sprzedaż - Warszawa, Mokotów, Zwierzyniecka
mieszkanie na sprzedaż - Warszawa, Mokotów, Zwierzyniecka

VES-MS-4630

Warszawa, Mokotów, Zwierzyniecka
mieszkanie na sprzedaż

57,00 m²

895 000
15 701,75 zł/m2
Dodaj
do notatnika
Mieszkanie na sprzedaż - Warszawa, Praga-Południe, Gocław, Konrada Guderskiego
mieszkanie na sprzedaż - Warszawa, Praga-Południe, Gocław, Konrada Guderskiego

VES-MS-4626

Warszawa, Praga-Południe,…
mieszkanie na sprzedaż

3 pokoje 61,60 m²

799 900
12 985,39 zł/m2
oferta na wyłączność
Dodaj
do notatnika
PLN
PLN
PLN
PLN
PLN
PLN
PLN
%
PLN
PLN
PLN

PLN

Uwaga: mogą wystąpić dodatkowe opłaty za założenie księgi wieczystej oraz ustanowienie hipoteki.

Dane:

PLN
%

Wynik:

PLN
pierwsza rata
ostatnia rata

Napisz do nas

Proszę wypełnić to pole
Proszę wypełnić to pole
Proszę wypełnić to pole
Proszę wypełnić to pole
Trwa wysyłanie...

Ta strona wykorzystuje pliki cookies w celach statystycznych oraz w celu dostosowania naszych serwisów do indywidualnych potrzeb klientów. Zmiany ustawień dotyczących plików cookie można dokonać w dowolnej chwili modyfikując ustawienia przeglądarki. Korzystanie z tej strony bez zmian ustawień dotyczących cookies oznacza, że będą one zapisane w pamięci urządzenia.

rozumiem