Warszawa, Praga-Południe, Gocław, Konrada Guderskiego

Mieszkanie na sprzedaż

3 pokoje 8 piętro 61,60 m2 13 797,08 zł/m2

849 900 zł

oferta na wyłączność

Opis nieruchomości

Na sprzedaż przestronne 3-pokojowe mieszkanie z balkonem – Warszawa, Gocław, ul. Guderskiego 3

Na sprzedaż funkcjonalne, ustawne mieszkanie o powierzchni 61,6  m², położone na 8. piętrze w 10-piętrowym budynku z windą, na warszawskim Gocławiu przy ul. Guderskiego 3.

Mieszkanie stanowi odrębną własność z księgą wieczystą, co umożliwia zakup na kredyt.


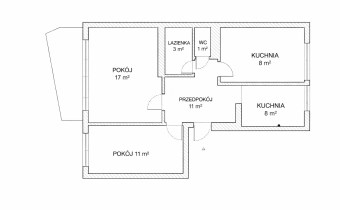
Układ i metraże pomieszczeń:

Mieszkanie ma bardzo praktyczny, dwustronny rozkład, zapewniający dobre doświetlenie wnętrz.

  • Salon – 17 m²
    Przestronny i jasny pokój dzienny z wyjściem na balkon, idealny do wypoczynku i spotkań.

  • Sypialnia – 11 m²
    Ustawna, z miejscem na duże łóżko i szafę.

  • Pokój / gabinet – 11 m²
    Doskonały jako pokój dziecięcy, gabinet lub druga sypialnia.

  • Kuchnia – 8 m²
    Oddzielna, widna kuchnia po remoncie, w pełni funkcjonalna.

  • Przedpokój – 11 m²
    Przestronny, z szafą typu Komandor w zabudowie.

  • Łazienka – 3 m²
    Po generalnym remoncie, nowoczesna aranżacja.

  • WC – 1 m²
    Oddzielne, co znacząco podnosi komfort użytkowania.

  • Balkon
    Dodatkowa przestrzeń do relaksu z widokiem na okolicę.

Dodatkowo:

  • do mieszkania przynależy piwnica,

  • możliwość korzystania z wózkowni.


Stan techniczny:

  • kuchnia oraz łazienka po remoncie,

  • wycyklinowane podłogi,

  • mieszkanie zadbane, gotowe do zamieszkania lub lekkiego odświeżenia.


Budynek:

  • blok z wielkiej płyty (przełom lat 70./80.),

  • zadbana klatka schodowa,

  • nowa winda,

  • spokojni, życzliwi sąsiedzi.


Lokalizacja i okolica:

Atrakcyjna lokalizacja na Gocławiu — cicha i spokojna okolica, a jednocześnie pełna infrastruktura:

  • Jezioro Balaton w pobliżu – idealne miejsce na spacery i rekreację,

  • sklepy, restauracje, apteki, punkty usługowe,

  • CH Gocław, siłownie, szkoły, przedszkola,

  • przychodnie lekarskie i weterynaryjne.

Komunikacja:

  • dojazd do centrum w ok. 20 minut,

  • w planach linia metra, co dodatkowo zwiększy atrakcyjność lokalizacji.

Nota prawna

Opis oferty zawarty na stronie internetowej sporządzany jest na podstawie oględzin nieruchomości oraz informacji uzyskanych od właściciela, może podlegać aktualizacji i nie stanowi oferty określonej w art. 66 i następnych K.C.

Szczegóły

Symbol oferty VES-MS-4626
Powierzchnia 61,60 m²
Powierzchnia użytkowa 61,60 m²
Liczba pokoi 3
Piętro 8
Rodzaj budynku budynek wielorodzinny
Technologia budowlana płyta po termomodernizacji
Piwnica 2,00 m²
Stan lokalu dobry
Stan prawny Odrębna własność lokalu
Mies. czynsz admin. 1 500 PLN
Okna PCV
Instalacje częściowo wymienione
Balkon duży
Winda tak

Pomieszczenia

Wysokość pomieszczeń 2,50 m
Powierzchnia pokoi 17,11,8 m2
Podłogi pokoi mozaika
Typ kuchni jasna z oknem
Rodzaj kuchni oddzielna
Powierzchnia kuchni 8 m2
Podłoga kuchni terakota
Typ łazienki osobno z wc
Liczba łazienek 1
Powierzchnia łazienki 3 m2
Podłoga łazienki terakota
Liczba WC 1
Powierzchnia WC 1 m2
Podłoga WC terakota
Liczba przedpokoi 1
Powierzchnia przedpokoi 11 m2
Podłoga przedpokoi terakota

Podobne oferty

Mieszkanie na sprzedaż - Warszawa, Mokotów, Puławska
mieszkanie na sprzedaż - Warszawa, Mokotów, Puławska

VES-MS-4609

Warszawa, Mokotów, Puławska
mieszkanie na sprzedaż

3 pokoje 45,40 m²

740 000
16 299,56 zł/m2
Dodaj
do notatnika
Mieszkanie na sprzedaż - Warszawa, Śródmieście, Mokotowska
mieszkanie na sprzedaż - Warszawa, Śródmieście, Mokotowska

VES-MS-4605

Warszawa, Śródmieście,…
mieszkanie na sprzedaż

2 pokoje 35,58 m²

849 000
23 861,72 zł/m2
Dodaj
do notatnika
Mieszkanie na sprzedaż - Warszawa, Praga-Południe, Jana Nowaka - Jeziorańskiego
mieszkanie na sprzedaż - Warszawa, Praga-Południe, Jana Nowaka - Jeziorańskiego

VES-MS-4591

Warszawa, Praga-Południe,…
mieszkanie na sprzedaż

1 pokój 37,70 m²

765 000
20 291,78 zł/m2
Dodaj
do notatnika
Mieszkanie na sprzedaż - Warszawa, Bielany, Bolesława Podczaszyńskiego
mieszkanie na sprzedaż - Warszawa, Bielany, Bolesława Podczaszyńskiego

VES-MS-4588

Warszawa, Bielany, Bolesława…
mieszkanie na sprzedaż

2 pokoje 35,50 m²

740 000
20 845,07 zł/m2
Dodaj
do notatnika
PLN
PLN
PLN
PLN
PLN
PLN
PLN
%
PLN
PLN
PLN

PLN

Uwaga: mogą wystąpić dodatkowe opłaty za założenie księgi wieczystej oraz ustanowienie hipoteki.

Dane:

PLN
%

Wynik:

PLN
pierwsza rata
ostatnia rata

Napisz do nas

Proszę wypełnić to pole
Proszę wypełnić to pole
Proszę wypełnić to pole
Proszę wypełnić to pole
Trwa wysyłanie...

Ta strona wykorzystuje pliki cookies w celach statystycznych oraz w celu dostosowania naszych serwisów do indywidualnych potrzeb klientów. Zmiany ustawień dotyczących plików cookie można dokonać w dowolnej chwili modyfikując ustawienia przeglądarki. Korzystanie z tej strony bez zmian ustawień dotyczących cookies oznacza, że będą one zapisane w pamięci urządzenia.

rozumiem